Zamów rozmowę za darmo
X

Podaj swój numer telefonu

Szanowny Kliencie, kiedy do Ciebie dzwonimy, to „przetwarzamy Twoje dane osobowe”, a kiedy opowiadamy Ci o naszych mieszkaniach, to „przedstawiamy Ci informację handlową”. Jeśli to rozumiesz i zgadzasz się, wyraź poniższą zgodę.

Wyrażam zgodę na otrzymywanie informacji handlowych przez telefon od Biura Sprzedaży (...) w celu marketingu bezpośredniego produktów i usług.

Administratorem Państwa danych osobowych jest "BIURO SPRZEDAŻY" z siedzibą w Ząbkach przy ulicy Powstańców 33 lok. U14, 05-091 Ząbki

Sprawdź opinie google

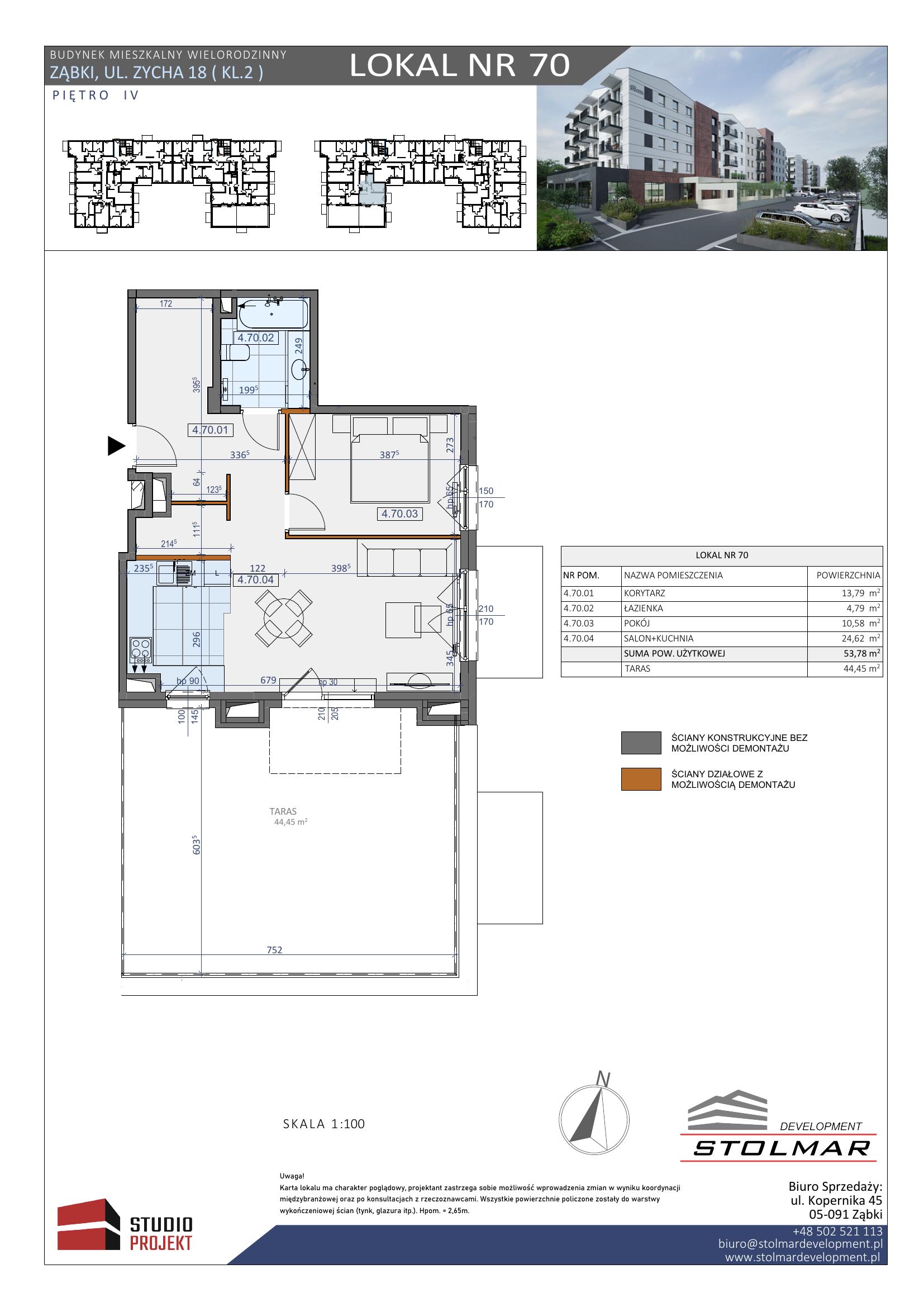
Ząbki, ul. Zycha 18
Lokal nr. 70

Informacje
Cena: 758298 zł
Cena za metr: 14100 zł Cena: 758 298 zł

Cena za metr: 14 100.00 zł
  • Adres: Ząbki, ul. Zycha 18
  • Piętro: 4
  • Nr lokalu: 70
  • Ilośc metrów: 53,78 m2
  • Balkon: 44,45 m2

Okolica
  • Do Szkoły:
  • Do Przedszkola:
  • Do terenów zielonych:
  • Do przychodni:
  • Do sklepów:
  • Do transportu miejskiego:

Mapa lokalizacji

Aktualne oferty